Kierownik budowy :)
Prosze napiszcie mi, ile kasuje w "obecnym czasie" kierownik budowy?
Znajomi rozmawiali z jednym kierownikiem i za maly parterowy domek ok. 70 m + garaz zaspiewal 2200,- czy to cena ok?
Dzieki za odpowiedz!
Prosze napiszcie mi, ile kasuje w "obecnym czasie" kierownik budowy?
Znajomi rozmawiali z jednym kierownikiem i za maly parterowy domek ok. 70 m + garaz zaspiewal 2200,- czy to cena ok?
Dzieki za odpowiedz!
Witam,dawno mnie tu u Was nie było, ale to dlatego, ze kompletnie nic sie nie dzieje. Ciagle czekamy, az nasz architekt zrobi adaptacje projektu ( juz 2 tydzien)! A gdzie pozwolene na budowe?! MASAKRA.
Ostatnio rozmyslalam czym obsadzic ogrodzenie naszej dzialki. Budowe domu chcemy zaczac na wiosne ( jak wszystko pojdzie zgodnie z naszymi planami )
Mamy dostyc spora dzialke i zastanawiam sie czym ja obsadzic. Wiadomo roslinki tez potrzebuja czasu zeby urosnac ;)
Przyznam szczerze, ze tuje wydaja mi sie troche oklepane. W necie znalazlam fajna stronke z zywoplotami.
http://www.cudowny-zywoplot.pl/index.htm
I przyznam ze imponujaco to wyglada. Bardzo zalezy mi, abym miala ładną zielen przed oknem tarasowym, bo akurat z tej strony bede miec malo ciekay widok. A Wy macie jakies pomysly na taki żywoplot. Moze znacie jakies fajne roslinki, ktore nie wymagaja zbytnio duzo pracy, a prezentuja sie ladnie :)? Pozdrawiam :-)
Witajcie!
Dzisiaj przedstawię Wam kilka rzeczy,na które chcemy zwrócić uwagę zaczynając budować dom, aby nie popaść w niepotrzebne koszta.
Gotowe projekty domów, które zamawiamy z internetu są tak skonstruowane, aby technicznie sprawdzały się w każdych warunkach ( nad morzem, w górach, na działki o różnej powierzchni ).
My mieszkamy na "normalnym" terenie, gdzie nie panują specyficzne warunki glebowe, ani klimatyczne. Nasza działka to teren suchy, piaszczysty ogólnie nic specyficznego. Dlatego też,rozmawialiśmy z zaufaną nam osobą ( od kilku ładnych lat budującą domki ), która doradziła nam abyśmy się zastanowili nad pewnymi sprawami, które podczas budowy ( w naszych warunkach ) wcale nie są aż tak konieczne, a znacząco podrażają nieopotrzebnie koszty. Otóż:
1. Czy potrzebny jest wieniec na fundamencie?
Jeżeli mamy położony fundament na to bloczki to czy na to rzeczywiście konieczny jest ten wieniec?
2. Czy do samej góry idą trzpienie od fundamentów? ( Jeżeli tak, to nie muszą w przypadku gdy strop nie jest drewniany ).
3. My mamy założoną murarkę technologią YTONG, tu opinie są mocno podzielone. I każdy będzie chwalił co mu pasuje.
Nam doradzono abyśmy zastanowili się nad Prototherm, ale na zaprawę cementową, ponieważ klej po jakimś czasie zaczyna zanikać, ponoć w Hiszpanii wycofano juz ten materiał.
4. Okna osadzane na specjalne taśmy samorozprężąjące sie, a nie jak do tej pory na pianke. Ponoć taśmy te lepiej sprawdzają się w długim okresie czasu, a niżeli pianka. Moze chodzi o większą szczelność...
Z tymi sprawami chcemy zwrócić sie jeszcze do naszego architekta, który niech sprawdzi w projekcie, czy dałoby rade coś z tym zrobić, aby niepotrzebnie narażac sie na niepotrzebne koszta, a dom bedzie stał w niernaruszonym stanie przez długie, długie lata.
A Wy co o tym myślićie? Może znacie jakieś niuanse, na które warto jescze zwrócić uwagę?
Podrawiam Weekendowo! :)
Witam wszystkich bardzo serdecznie:)
Dzisiaj mam prośbę do tych z was, którzy budują podobny domek do naszego.
http://www.domplan.com.pl/Kendra%202M/Kendra%202M.html
Jesteśmy po wstępnych rozmowach z kilkoma ekipami budowlanymi, które mają czas zająć się naszą budową w marcu.
W przyszłym tygodniu dostanę od architekta rysunki potrzebne do wyceny kosztów budowy.
Proszę więc Was o podanie mi jakie były wasze koszty robocizny za SSZ waszego domku ( pow. ok 200m2 z garazem i dach dwuspadowy).
Chciałabym mieć jakiekolwiek rozeznanie w cenach. ( Choć wiem ze to też zależy od regionu )
Ale chociaż przy wyborze ekipy bedziemy wiedzieć na czym się stoi :)
Pozdrowionka!
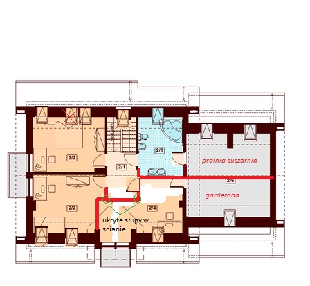
Poddasze: Zmiany ścianki działowej w pomieszczeniu 2/4 - głownie aby ukryć słupy w ściane, oraz aby każdy z pokoi miał swoje wyjście na balkon.
Zmienilismy układ okien dachowych. Powiększenie łazienki kosztem korytarzyka.
Dodanie okna dachowego nad schodami aby nie bylo ciemno.
Parter: Dodany wykusz, zadaszenie tarasu oraz zmiana wygladu w kotłowni. Dodanie tam umywalki.
Wszystkie zmiany zaznaczone są kolorem czerwonym :-)


Komentarze